我要收藏
公共资源调用站点
文章分享
2025年8月21日5时33分56秒,桂林莱茵生物科技股份有限公司(以下简称:“莱茵生物”)甜叶菊提取干燥车间真空带式干燥机发生爆炸事故,造成1人死亡,7人受伤(其中3人重伤,4人轻伤)。
事故发生后,依据《生产安全事故报告和调查处理条例》(国务院令493号)的规定,临桂区人民政府立即成立了由区长担任组长,区政府办、区应急管理局、区市场监管局、区工信局、市公安局临桂分局、区消防救援大队、区人社局、区总工会、四塘镇人民政府相关人员组成的临桂四塘桂林莱茵生物科技股份有限公司“8·21”一般容器爆炸事故调查组(以下简称“事故调查组”),并邀请检察机关派员参加,同时聘请专家进行技术鉴定。
事故调查组按照“科学严谨、依法依规、实事求是、注重实效”的原则,通过现场勘察、询问在场人员、资料查阅和技术鉴定,查明了事故发生的经过、原因、人员伤亡和财产损失等情况,认定了事故性质和责任,提出对相关责任人员和责任单位的处理建议,以及事故防范整改措施。
调查认定,临桂四塘桂林莱茵生物科技股份有限公司“8·21”一般容器爆炸事故是一起因工人违规操作导致的一般生产安全责任事故。
一、事故责任单位相关情况
(一)企业名称:1.桂林莱茵生物科技股份有限公司、统一社会信用代码:91450300723095584K(1-1)、单位地址:桂林市临桂区人民南路19号、法定代表人:郑辉、企业类型:股份有限公司(上市、自然人投资或控股)、经营范围:植物提取物、中药提取物、食品及食品添加剂、饲料和饲料添加剂、植物提取物配方产品、护肤用化妆品及个人护理用品的研发、生产、销售、技术转让及自营出口;植物种苗培育及繁育研究、应用、推广及技术转让。
2.持有广西壮族自治区市场监督管理局颁发的《食品生产许可证》,食品类别:调味品、饮料、茶叶及相关制品、保健食品、食品添加剂、食品用香精、复配食品添加剂。
3.2014年1月7日取得临桂县发展和改革局基本建设投资项目登记备案证。
4.2015年8月20日取得桂林市临桂区住房和城乡建设局的建筑工程施工许可证,2017年11月2日取得竣工验收备案。
5.2015年8月5日取得桂林市公安消防支队建设工程消防设计审核意见书,2017年7月21日取得建设工程消防验收意见书。
(二)安全设施设计“三同时”情况:2014年5月广西锦宏安全咨询评价有限公司出具了桂林莱茵生物科技股份有限公司植物资源综合应用产业化工程项目使用危险化学品安全预评价报告,2021年1月贵州朗洲安全科技有限公司出具了项目安全专篇,2021年11月贵州达安安全技术服务有限责任公司出具了项目安全验收评价报告。
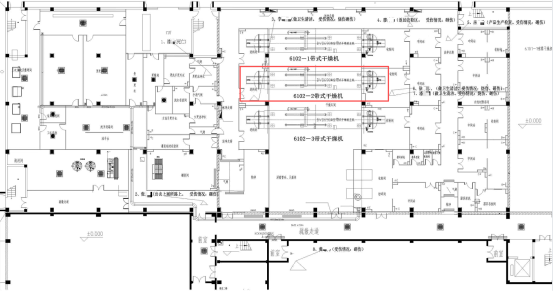
(三)干燥车间平面布置图:红框处为2号带式干燥机

(四)2号真空干燥机基本情况:该设备系莱茵生物于2014年11月向温州市金榜轻工机械有限公司购买,型号为BVD690型真空带式干燥机组,主机尺寸φ2500某16500某4600MM,主要技术参数:水分蒸发能力:80-115kg/h、加热温度:50-135℃、进料速度:10-60L/h,加热面积:99㎡、冷却面积:8㎡、装机功率:130kw。该真空带式干燥机为真空密闭干燥形式,卧式机,容积为78m3。爆炸发生车间在一层布置有3台同型号的真空带式干燥机,发生爆炸的为中间的2#干燥机。机体内部分五段工作区,一至四段为加热干燥区,第五段为冷却结晶区。干燥机内部从上至下布置6层履带。两边为轨道式封头,一边为进料口,一边为出料口。干燥方式为通过外置板式换热器,用蒸汽加热循环水,将热水通入干燥机每层履带下方的热水管对物料进行加热干燥,在完成干燥后(约12个小时),在第五段冷却区通入冷却水进行冷却结晶,冷却完成后履带运转,物料自动下料,真空抽负压至收集仓。
(五)干燥工序基本操作流程:打开进料口封头,人工装料,装料完成后关闭封头,上紧卡扣(两边封头各6个),检查真空泵手动球阀与蜗杆蝶阀处于开启状态(箭头指向Open);若使用另一台机组的真空泵,则需要按规定关闭和开启对应的阀门组。在现场PLC控制界面开启真空泵抽真空,达到真空度(-3000~3500Pa)后,开启热水泵,通热水进行升温加热,干燥完成后停热水泵,履带缓慢转动,至冷却段,冷却出料,待全部物料出料完成后,停止加热,停止冷却,停真空泵。
(六)真空泵情况:设置3台真空泵,3#真空泵处于停用状态,2025年2月公司对1、2、3#真空泵进口加装联通管改造,切换使用。事故发生前白班时只有2#干燥机在干燥甜叶菊湿晶,用1号真空泵抽2#干燥机内气体,1#真空泵阀门状态为蜗杆蝶阀打开,手动蝶阀打开,手动球阀关闭;2#真空泵蜗杆蝶阀关闭,手动蝶阀打开,手动球阀关闭。夜班(事故班组)接班后因1#干燥机要干燥芒果液,班长赵某某在1#干燥机装好产品后于21日凌晨0时30分许,将1#、2#真空泵手动蝶阀关闭,让操作工唐某某将1#真空泵手动球阀打开。1#真空泵及1#干燥机正常工作。事故发生后现场勘查1#真空泵蜗杆蝶阀关闭、手动蝶阀关闭、手动球阀打开,2#真空泵机组蜗杆蝶阀关闭、手动蝶阀关闭、手动球阀打开。

(七)干燥物料情况:待干燥物料为甜叶菊湿晶经过前期一系列工序处理后,在进干燥机前为粉块混合状,每批进料量约1100kg,其中含水约45%,含乙醇约0.5%。后检测同一批次甜叶菊湿晶乙醇含量为5016mg/kg。
二、事故基本情况
(一)事故发生经过
2025年8月21日凌晨,按生产计划,当班班长赵某某于3时35分开始安排工人进行上料工作,将1.1吨甜叶菊湿晶放入2#带式干燥机组内进行干燥作业。
4时57分,投完物料后,操作工潘某关闭干燥机进料口封头,并爬到楼梯顶部关闭3个锁扣(共6个)。5时06分,潘某返回操作屏幕,启动真空泵的同时启动热水泵,并对投料入口段左侧下方的一锁扣加固,随后再次离开投料间。5时10分,潘某又一次返回操作屏幕,监控显示其使用对讲机进行沟通对话。5时14分,潘某用对讲机喊“夹层锅”操作工张某某进入二楼真空机房查看真空泵运行情况后离开(未做操作)。5时15分,潘某进入投料间查看屏幕后离开。5时16分,清洁工李某某开始对地面进行卫生清洁。5时18分,潘某再次进入投料间看一眼屏幕后又离开。5时21分,潘某又进入投料间看一眼屏幕后又离开。5时22分,潘某再次进入投料间操作屏幕。5时23分,潘某又进入投料间看一眼屏幕后又离开,反复两次。期间,潘某在男更衣室找到副班长彭某某,报告2#干燥机未能正常预抽真空,彭某某随即进入二楼机房查看真空泵情况,将2#真空泵集料仓阀门打开,并电话联系2#喷雾收粉间操作工蒙某某询问真空状态。蒙某某问潘某,潘某回答还是未能正常预抽真空。彭某某就离开二楼真空泵机房(共停留7分钟)计划上三楼向班长汇报2#真空机情况。5时24分,潘某再次进入投料间操作屏幕;5时25-26分,潘某在投料间查看屏幕。5时28分,潘某离开后又进入投料间操作屏幕,随后离开。5时29分,潘某回到投料间看操作屏幕。5时31分,潘某从投料间进入更衣间走道;5时33分56秒事故发生。罐体两侧封头被高压气体冲出,冲出后产生静电火花,引起罐内乙醇蒸汽闪爆,导致操作工潘某在男更衣室被隔墙压倒,清洁工李某某在进料间被砸伤、烧伤,清洁工徐某某、潘某某在收料间被砸伤、烧伤,车间其余4人受伤。
(二)事故现场情况
从车间外部视频监控看,爆炸当时车间二楼西北角的窗口有气浪冲出,同时一楼西南角的门有剧烈摇摆晃动现象。从爆炸现场看,彩钢隔板破损,车间门窗玻璃震碎,2#干燥机筒体完好,中间的3个玻璃观察孔有裂纹,两边封头已冲出,进口封头落在离筒体约5米处,出口封头落在离筒体约10米处。干燥机内履带、物料有烧黑、碳化现象,其中第四段加热段及冷却段较为严重。出口封头侧,洁净区的空调出风管弯头断落,现场罐体内有明火燃烧。

(图为事故发生后现场情况)
(三)人员伤亡和财产损失情况
1.潘某,男,身份证号:450322××××××××××××,住址:广西临桂县××××××,因伤势较重,抢救无效死亡。(2#干燥机操作工)
2.潘某某,女,身份证号:450328××××××××××××,住址:广西龙胜各族自治县××××××。(清洁工)
3.李某某,女,身份证号:450322××××××××××××,住址:广西临桂县××××××。(清洁工)
4.徐某某,女,身份证号:450322××××××××××××,住址:广西临桂县××××××。(清洁工)
5.廖某某,女, 身份证号:450322××××××××××××,住址:广西临桂县某某某某某某。(操作工)
6.房某某,女, 身份证号:450322××××××××××××,住址:广西临桂县××××××。(操作工)
7.黄某某,女,身份证号:452731××××××××××××,住址:广西临桂县××××××。(结晶单效浓缩操作工,9月1日已出院)
8.张某某,男,身份证号:450322××××××××××××,住址:广西临桂县××××××。(夹层锅操作工,8月28日已出院)
事故共造成1人死亡,7人受伤住院治疗(重伤3人,轻伤4人),2人已出院。
事故调查组依据《企业职工伤亡事故经济损失统计标准》(GB/T6721)等标准和规定统计,已核定的事故造成直接经济损失308.8万元人民币,其中:人身伤亡后支出的费用84.3万元,善后处理费用84.5万元,财产损失价值140万元。
三、事故发生原因和事故性质
(一)事故直接原因及原因分析
经过深入调查研究分析及专家组意见,事故原因系操作工潘某在2#真空带式干燥机装料完成后未按规程要求进行操作,未开启真空泵阀门,未将所有封头卡扣扣完。在PLC启动真空泵的同时启动热水泵,但由于真空泵蜗杆蝶阀没有打开,不能正常预抽真空(-3000~3500Pa),导致罐内无法形成负压环境。在升温加热过程中,该干燥机内物料中的水分和乙醇不断被蒸发,水蒸气和乙醇蒸汽体积膨胀增压,导致罐体两侧封头被高压气体冲出,冲出后产生静电火花,引起罐内乙醇蒸汽闪爆。
(二)事故性质
桂林莱茵生物科技股份有限公司“8·21”一般容器爆炸事故是一起生产安全责任事故。
四、事故救援及应急处置情况
2025年8月21日5时40分,桂林市120急救中心派出9辆救护车和27名医务人员赶赴现场,全力救治受伤人员。桂林市消防救援支队指挥中心接到报警后,立即调派三元、榕山消防救援站,中隐路特勤站共出动1个防化编队、2个灭火编队、1个高喷编队,8辆消防车、48名消防救援人员赶赴现场扑救,支队全勤指挥部遂行出动。5时52分,三元消防救援站率先到达事故现场,现场指挥员侦察现场后,立即组织开展搜救。
接到事故报告后,临桂区委、区政府及区应急、消防、卫健、工信等部门快速响应,及时启动应急预案,迅速组织相关救援力量投入事故现场应急救援工作。桂林市、临桂区主要领导,相关部门负责人第一时间赶赴现场,指挥协调有关部门进行应急救援、事故调查和善后处置工作。自治区应急管理厅也迅速派出专家到现场指导事故调查工作。
事发时,车间内共有16人,其中14人紧急撤离车间,2人被困。撤离出来的人员中有6人受伤,第一时间被送往解放军联勤保障部队第924医院救治。7时25分许,救出第一名被困人员廖某某,暂无生命危险,紧急送往医院救治。9时38分许,找到第二名被困人员潘某,经现场抢救无效死亡。
本起事故应急处置有力、有序。临桂区人民政府及相关部门、莱茵生物第一时间启动应急救援预案,事故信息接报及时、组织指挥有力、应急响应快速、舆情社情平稳、安抚善后周到,未发生次生事故。
五、有关责任单位存在的主要问题
莱茵生物落实安全生产主体责任不到位,安全生产责任制对各岗位的针对性不强,员工安全意识淡薄,对干燥工艺进行安全风险辨识和制定风险管控措施不到位,对车间安全检查、隐患排查治理不到位,安全生产教育培训流于形式,员工违章操作,应急预案缺乏针对性,员工应急处置能力较弱,真空泵阀门上未设置明显警示标识。
六、对事故有关责任人员和责任单位的处理意见
(一)莱茵生物落实安全生产主体责任不到位,安全生产责任制对各岗位的针对性不强,员工安全意识淡薄,对干燥工艺进行安全风险辨识和制定风险管控措施不到位,对车间安全检查、隐患排查治理不到位,安全生产教育培训流于形式,员工违章操作,应急预案缺乏针对性,员工应急处置能力较弱,真空泵阀门上未设置明显警示标识。违反了《中华人民共和国安全生产法》第四十一条第一款[1]、第二十八条第一款[2]、第三十五条[3]之规定,对事故的发生负有责任,建议由临桂区应急管理局依据《中华人民共和国安全生产法》第一百一十四条第(一)项[4]之规定予以处罚。
(二)潘某,作为真空带式干燥机设备操作工,负责真空带式干燥机操作,安全意识淡薄,未按操作规程要求进行操作。导致涉事干燥机爆炸造成其死亡,对事故负有责任,鉴于在事故中死亡,免予追究其责任。
(三)莱茵生物班长赵某某、副班长彭某某,开启2#真空泵前未检查手动蝶阀、蜗杆蝶阀开闭状态,未及时制止工人潘某在作业过程中未按照操作规程操作未达到真空度(-3000~3500Pa)就开启热水泵,通热水进行升温加热,在潘某反映未能抽真空后,应急处置不当,未及时关闭加热。违反了《中华人民共和国安全生产法》第二十五条第(六)项[5]之规定,对事故的发生负有责任,建议由临桂区应急管理局依据《中华人民共和国安全生产法》第九十六条[6]之规定予以处罚。
(四)覃某某,莱茵生物健康安全环境管理委员会(EHS)专员,未按规定履行安全生产管理人员工作职责,组织安全生产教育和培训无针对性,对干燥工艺进行安全风险辨识和制定风险管控措施不到位。违反《中华人民共和国安全生产法》第二十五条第(二)、(三)、(五)项[7]之规定,对事故的发生负有责任,建议由临桂区应急管理局依据《中华人民共和国安全生产法》第九十六条[8]之规定予以处罚。
(五)姚某某,莱茵生物干燥车间主管,安全生产教育培训不到位,操作人员未掌握本岗位的安全操作技能和异常工况处置措施、了解本岗位安全风险;检查本单位的安全生产状况不力,未及时排查安全生产事故隐患。违反《中华人民共和国安全生产法》第二十五条第(二)、(五)、(六)项[9]之规定,对事故的发生负有责任,建议由临桂区应急管理局依据《中华人民共和国安全生产法》第九十六条[10]之规定予以处罚。
(六)蒋某某,莱茵生物生产总监,负责莱茵生物生产管理工作,未能有效履行主要负责人的安全生产管理职责,落实全员安全生产责任制不到位,落实安全风险分级管控和隐患排查不彻底,督促公司相关人员落实安全生产工作不到位。违反《中华人民共和国安全生产法》第二十一条第(一)、(五)项[11]之规定,对事故的发生负有责任。建议由临桂区应急管理局依据《中华人民共和国安全生产法》第九十五条第(一)项[12]之规定予以处罚。
七、事故防范和整改措施建议
(一)强化企业安全生产主体责任落实
莱茵生物应深刻汲取事故教训,牢固树立以人为本、安全发展理念,坚决克服重效益轻安全的思想。要深入开展安全生产风险分级管控和隐患排查治理双重预防机制建设。要认真组织工艺技术人员,运用HAZOP分析方法(危险与可操作性分析),深入分析评估干燥过程的风险,完善工艺过程设计,采取有效措施控制风险。要组织工艺、仪表人员及自动化设备厂家,认真研究干燥工序的自动化控制方案,完善温度、压力、液位等参数的远程监控、自动调节、联锁和视频监控等功能,重点落实干燥机真空度与热水泵、蒸汽阀的联锁控制。要彻底排查真空系统安全隐患,严格落实防静电措施,加强日常的设备点检、维护、预防性维修等管理,确保设备的正常完好。要建立异常工况处置制度,认真研究异常工况的安全处置要点,组织相关人员进行培训、考核,并定期开展演练,提升异常工况处置能力。要建立健全变更风险管理制度,对工艺、设备、电气仪表、管理等方面的变更履行变更审批手续,开展风险分析、落实安全措施,实施变更验收,更新相关管理制度、操作规程、设计图纸及控制系统,并对人员进行培训。
(二)压实行业主管部门安全监管责任
1.持续推进安全生产治本攻坚三年行动。各乡镇、各有关部门要认真贯彻落实习近平总书记关于安全生产重要论述和指示批示精神,始终把三年行动作为安全生产工作主线,进一步增强责任感使命感,主动担当作为。通过严密监管、严格执法、严厉处罚,综合运用挂牌督办、约谈警示等措施手段,高压推进事故隐患整改,确保治本攻坚行动取得成效。
2.持续抓好重点行业领域安全监管。各乡镇、各有关部门,特别是区工信局、应急管理局、市场监管局等部门要持续推进重点行业领域安全生产专项整治,精准治理重大安全风险,坚持服务与监管相结合,组织专家指导企业宣贯法规标准、排查整改隐患;严厉打击非法违法行为,加大查处力度;严格落实年度执法检查计划,强化“双随机、一公开”,严格责任追究,加强典型案例曝光,倒逼安全生产责任落实。
3.加强安全宣传和事故案例警示教育。区应急管理部门应制作事故警示教育片,其他监管部门及时组织本行业领域企业集体观看,提高从业人员安全意识,以案示警,做到“一厂出事故,万厂受教育”。
(三)积极推进广西企业安全发展项目建设
各企业要建立健全以主要负责人(董事长、总经理)为核心的安全生产领导负责制,全面落实全员安全生产责任制,完善安全治理体系。要建立企业安全发展项目的五项关键管理机制(隐患排查机制,合理化建议机制,双向沟通机制,持续改进机制以及项目评估机制),深化风险防控与隐患排查,提升本质安全水平,激励员工参与隐患排查,推动安全管理从“要我安全”向“我要安全”转变。要完善企业教育培训机制,加强培训宣传与应急能力建设,营造“企业主动推进、员工积极参与”的安全文化氛围。
临桂四塘桂林莱茵生物科技股份有限公司
“8·21”一般容器爆炸事故调查组
1
[1] 《中华人民共和国安全生产法》第四十一条 第一款生产经营单位应当建立安全风险分级管控制度,按照安全风险分级采取相应的管控措施。
[2]《中华人民共和国安全生产法》第二十八条 生产经营单位应当对从业人员进行安全生产教育和培训,保证从业人员具备必要的安全生产知识,熟悉有关的安全生产规章制度和安全操作规程,掌握本岗位的安全操作技能,了解事故应急处理措施,知悉自身在安全生产方面的权利和义务。未经安全生产教育和培训合格的从业人员,不得上岗作业。
[3]《中华人民共和国安全生产法》第三十五条 生产经营单位应当在有较大危险因素的生产经营场所和有关设施、设备上,设置明显的安全警示标志。
[4] 《中华人民共和国安全生产法》第一百一十四条 发生生产安全事故,对负有责任的生产经营单位除要求其依法承担相应的赔偿等责任外,由应急管理部门依照下列规定处以罚款:(一)发生一般事故的,处三十万元以上一百万元以下的罚款;
[5] 《中华人民共和国安全生产法》第二十五条 生产经营单位的安全生产管理机构以及安全生产管理人员履行下列职责:(六)制止和纠正违章指挥、强令冒险作业、违反操作规程的行为;
[6] 《中华人民共和国安全生产法》第九十六条 生产经营单位的其他负责人和安全生产管理人员未履行本法规定的安全生产管理职责的,责令限期改正,处一万元以上三万元以下的罚款;导致发生生产安全事故的,暂停或者吊销其与安全生产有关的资格,并处上一年年收入百分之二十以上百分之五十以下的罚款;……
[7] 《中华人民共和国安全生产法》第二十五条 生产经营单位的安全生产管理机构以及安全生产管理人员履行下列职责:(二)组织或者参与本单位安全生产教育和培训,(三)组织开展危险源辨识和评估,督促落实本单位重大危险源的安全管理措施;(五)检查本单位的安全生产状况,及时排查生产安全事故隐患,提出改进安全生产管理的建议;
[8] 《中华人民共和国安全生产法》第九十六条 生产经营单位的其他负责人和安全生产管理人员未履行本法规定的安全生产管理职责的,责令限期改正,处一万元以上三万元以下的罚款;导致发生生产安全事故的,暂停或者吊销其与安全生产有关的资格,并处上一年年收入百分之二十以上百分之五十以下的罚款;……
[9] 《中华人民共和国安全生产法》第二十五条 生产经营单位的安全生产管理机构以及安全生产管理人员履行下列职责:(二)组织或者参与本单位安全生产教育和培训,如实记录安全生产教育和培训情况;(五)检查本单位的安全生产状况,及时排查生产安全事故隐患,提出改进安全生产管理的建议;(六)制止和纠正违章指挥、强令冒险作业、违反操作规程的行为;
[10] 《中华人民共和国安全生产法》第九十六条 生产经营单位的其他负责人和安全生产管理人员未履行本法规定的安全生产管理职责的,责令限期改正,处一万元以上三万元以下的罚款;导致发生生产安全事故的,暂停或者吊销其与安全生产有关的资格,并处上一年年收入百分之二十以上百分之五十以下的罚款;……
[11] 《中华人民共和国安全生产法》第二十一条 生产经营单位的主要负责人对本单位安全生产工作负有下列职责:(一)建立健全并落实本单位全员安全生产责任制,加强安全生产标准化建设;(五)组织建立并落实安全风险分级管控和隐患排查治理双重预防工作机制,督促、检查本单位的安全生产工作,及时消除生产安全事故隐患;
[12]《中华人民共和国安全生产法》第九十五条 生产经营单位的主要负责人未履行本法规定的安全生产管理职责,导致发生生产安全事故的,由应急管理部门依照下列规定处以罚款:(一)发生一般事故的,处上一年年收入百分之四十的罚款;
文件下载:
关联文件: